Aller au contenu principal

Charmant 4 pièces avec balcons
Strasbourg - Musée d'art moderne

Disponibilité
Disponible
Exclusivité
Exclusivité
Référence
440
Profile picture for user Daphné LAPOURRÉ

Daphné LAPOURRÉ

Votre conseiller
location pin
Strasbourg - Musée d'art moderne
Adresse
30 boulevard de Lyon
Prix
349 800€

Planifier une visite
06 95 25 79 58

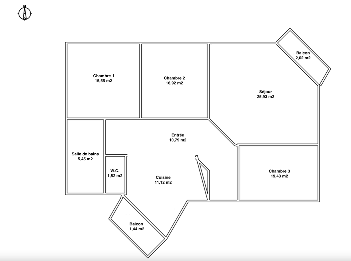
Au cœur d’un quartier vivant et recherché, à deux pas du Musée d’Art Moderne et de la gare de Strasbourg, découvrez ce charmant appartement de 4 pièces qui conjugue cachet de l’ancien, luminosité et emplacement stratégique.

Situé au 2ᵉ étage d’un immeuble bien entretenu cet appartement bénéficie d'une distribution optimale permettant une circulation fluide sans perte d’espace.

Il se compose d'une pièce de vie spacieuse et baignée de lumière, ouverte sur un balcon exposé sud-ouest, de trois chambres à coucher confortables avec une belle hauteur sous plafond, parquet et double vitrage récent, d'une salle de bains avec fenêtre et meuble double vasque et d'un WC séparé.

La cuisine équipée et aménagée bénéficie elle aussi d’un accès extérieur avec un second balcon orienté nord-est, offrant une double exposition qui garantit une clarté naturelle du matin au soir.

L’ensemble est en très bon état général, avec une chaudière gaz installée en 2010 assurant un confort thermique efficace.

Une cave privative au sous-sol et un emplacement vélos dans la cour viennent compléter le bien.

L’adresse offre un cadre de vie particulièrement apprécié à Strasbourg : transports en commun au pied de l’immeuble, pistes cyclables, commerces, écoles, établissements culturels et accès rapide aux grands axes.

Un bien qui allie espace, élégance, fonctionnalité et qualité d’emplacement, idéal pour une vie citadine confortable, familiale ou active, dans un secteur très apprécié de la ville.

Agent commercial immobilier – RSAC Strasbourg 931 502 827.
Pour le compte de Reverdin Immobilier.

Spécificités du bien

Nombre de pièces 4
Nombre de chambres 3
Surface 107 m²
Surface du séjour 26 m²
Type de cuisine Ouverte aménagée
Cuisine équipée Oui
Année de construction 1902
Étage de l'appartement 2
Nombre d'étage dans l'immeuble 5
Type de chauffage Individuel gaz
Production de l'eau chaude Individuelle gaz
Salle de bains Oui
Toilette séparé Oui
Balcon  2
Cave  Oui
Ascenseur Non
Local vélo Oui
Taxe foncière   1 049 €
Charges de copropriété mensuelles   126 €
Quote-part moyenne du budget prévisionnel de charge annuel   1 516 €
Nombre de lot copropriété   15
Nombre de lot d'habitation   6
Procédure en cours dans la propriété   Non
Prix du bien   349 800 €
Prix du bien hors honoraires   330 000 €
Honoraire charge acquéreur   Oui
Honoraires d'agence   19 800 €
Montant estimé des dépenses annuelles d’énergie pour un usage standard   entre 2 010 et 2 770 €
Prix moyen des énergies indexées (abonnements compris)   2021-22-23
Consommation énergie primaire (kWh/m²/an)   211
Consommation énergie finale (kWh/m²/an)   207

DPE / Diagnostic de performance énergétique

GES / Gaz à effet de serre

Plan